Heathcotepropertiesforsale

powered by Open2view.com

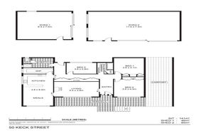
50 Keck Street

Victoria North
3
1
N/A
N/Asqm
N/Asqm
50 Keck Street Victoria North
proudly marketed by
BRE rental team
Bendigo Real Estate
Convenient Living in the Heart of Flora Hill
Positioned in popular Flora Hill, this three-bedroom home combines charm and practicality with easy access to La Trobe University, Strath Village, and Bendigo's CBD. Each bedroom includes built-in robes, and the lounge is enhanced by polished floorboards. The kitchen provides ample storage, a walk-in pantry, and modern appliances, flowing into the meals area for easy everyday living. A central bathroom, separate toilet adds to the home's functionality. Outside, you'll find a single carport, enclosed yard, and access to the front shed. Close to Strath Village Shopping Centre, Woolworths, schools, and just minutes from the CBD, this property combines lifestyle and convenience. **Please note: no access to the rear shed.**
Question
Upload by Lars Heinicke - Photo
Bendigo
This property was photographed by